Основное

Номер лота:
Цена: Р 70 000 000
Категория: Дома/Коттеджи (Продажа)
Регион: Новосибирская область
Город: дачный поселок Кудряшовский
Адрес: Лиговка улица
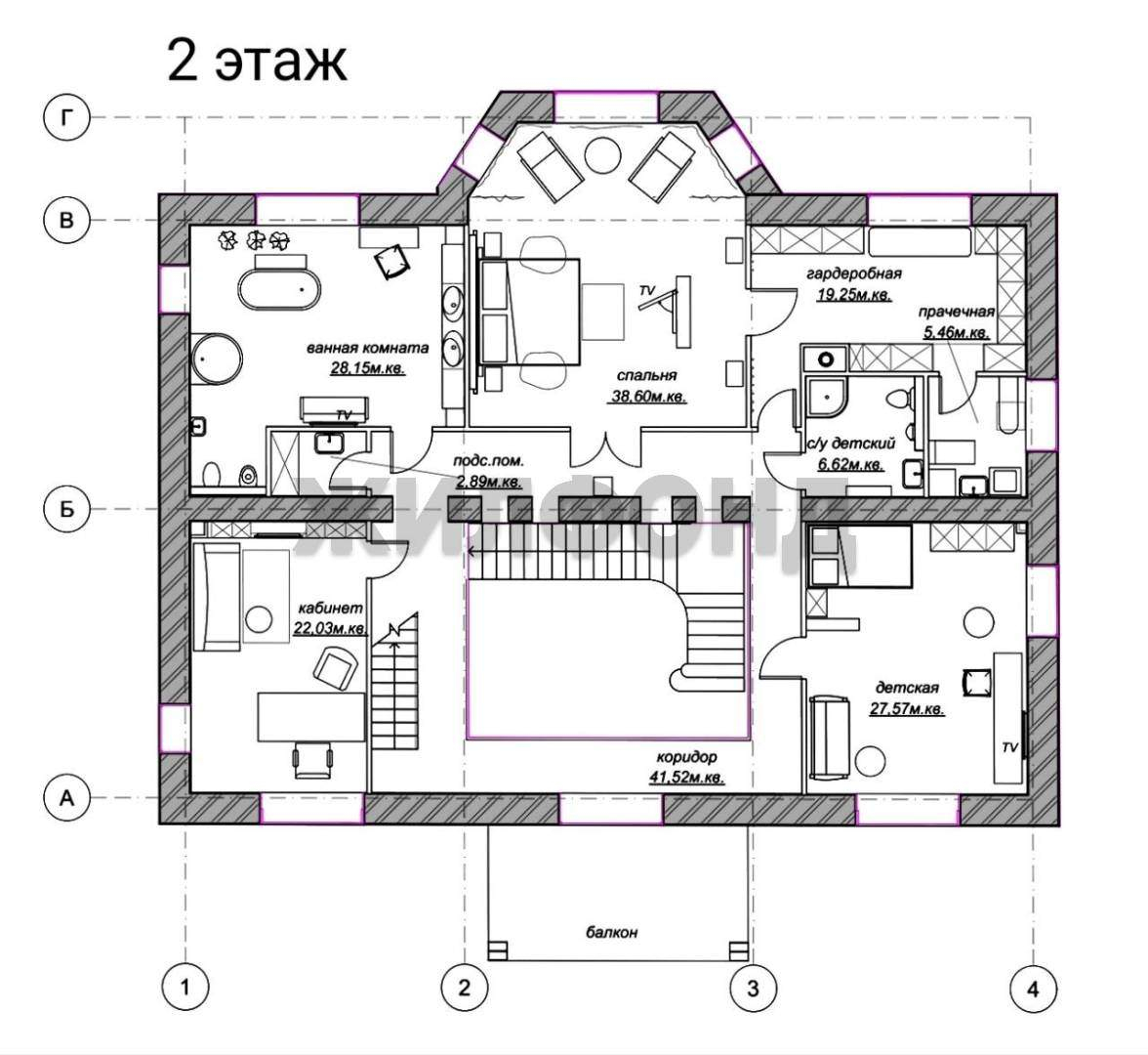
Общая площадь: 642.9
Площадь участка: 20 сот.

Коттедж по ул. Лиговка. Общей площадью: 642.90 кв.м. Усадьба мечты в сосновом бору - европейский комфорт в сердце Сибири Продаётся уникальная усадьба, сочетающая тишину, прозрачный воздух соснового бора и мгновенную доступность городской инфраструктуры Новосибирска. Это не просто дом.

Объект на карте

Toggle

Header styles

Reset default