Основное

Номер лота:
Цена: Р 3 800 000
Категория: Дома/Коттеджи (Продажа)
Регион: Алтайский край
Город: село Малоенисейское
Адрес: Лесная улица
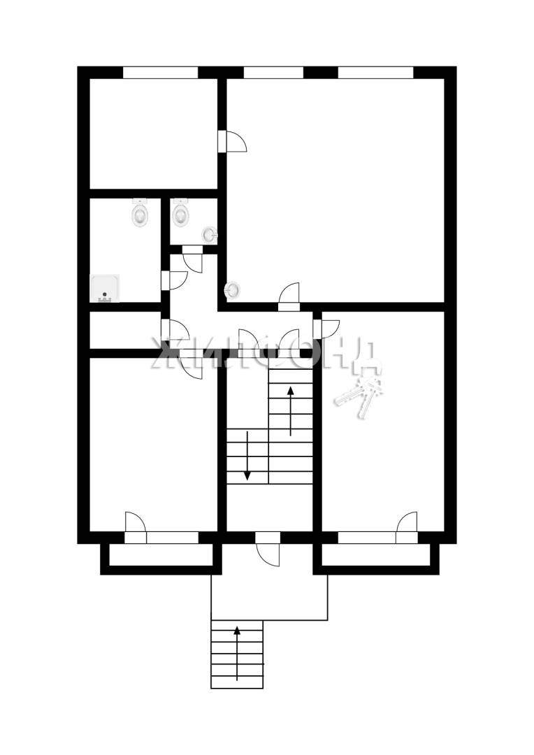
Общая площадь: 120
Площадь участка: 7.5 сот.

Дом по ул. Лесная. Общей площадью: 120.00 кв.м. Продается второй этаж благоустроенного дома в с. Малоенисейское. Общая площадь 120 кв.м. Кухня-гостиная 32 кв.м. , три спальни и два санузла. Благоустроенная квартира. Полностью изолированная от соседей. Отдельный вход. 7,5 соток земли в собственности. Дом утеплен и обшит металлосайдингом. Отдельный двор. Вода- скважина + дополнительный насос в квартире на подкачку воды. Батареи, качественная разводка, немецкий насос на отоплении. Электроотопление (энергосберегающий вихревой индукционный котел) - никакой угольной пыли, золы и грязной работы. Нет перепадов температуры. Есть возможность установки и твердотопливного котла. Пластиковые окна. Мощная электропроводка. Канализация - пластик. Две большие бетонные ямы. Посудомойка, вытяжка. Большая теплица 8 м, бетонный, отдельно стоящий, погреб 3х3 м. Из коммунальных платежей только электроэнергия. Один взрослый собственник. Долгов и обременений нет. В собственности более 10 лет. Хороший, надежный дом. Возможен обмен на квартиру в Бийске меньше по размеру или с доплатой. Звоните и записывайтесь на просмотр! При звонке, пожалуйста, сообщите номер варианта - JV008022100386

Объект на карте

Toggle

Header styles

Reset default