Основное
| Номер лота: |
|
| Цена: |
Р 35 500 000 |
| Категория: |
Квартиры (Продажа) |
| Регион: |
Краснодарский край |
| Город: |
Город Геленджик |
| Адрес: |
ул. Мира, 40 |
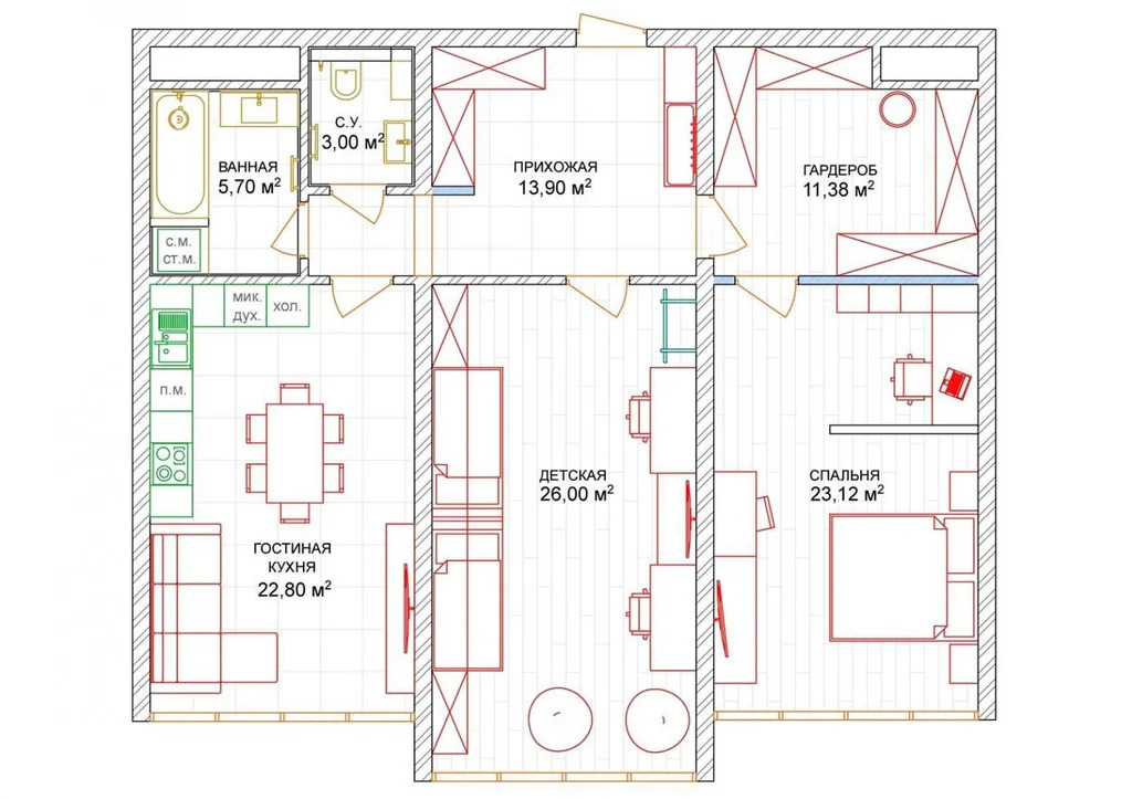
| Общая площадь: |
105.8 |
| Жилая площадь: |
39 |
| Площадь кухни: |
22.8 |
|
id:329.
Продаётся Двухкомнатную квартира площадью 105,8 кв. м. в современном жилом комплексе "Бриз" в г. Геленджик, расположенная на первой береговой линии. Квартира без ремонта, что позволяет новым владельцам реализовать свои дизайн-идеи и создать уникальное пространство, соответствующее всем их требованиям.
Одним из главных преимуществ данного предложения является великолепный вид на море, который открывается с окон квартиры. Такой вид станет настоящим украшением и источником вдохновения для каждого дня.
Статус квартиры подтверждает возможность оформления собственности и удобную сделку. Также следует отметить, что полная сумма будет указана в договоре, что обеспечивает прозрачность и безопасность сделки.
Не упустите возможность стать владельцем этой замечательной квартиры в одном из самых красивых уголков Черноморского побережья.
Звоните прямо сейчас и станьте владельцем этого уникальной квартиры! Не упустите свой шанс на счастливую жизнь у моря!
|